Замена системы отопления Агафоново
Замена действующей системы отопления дома.
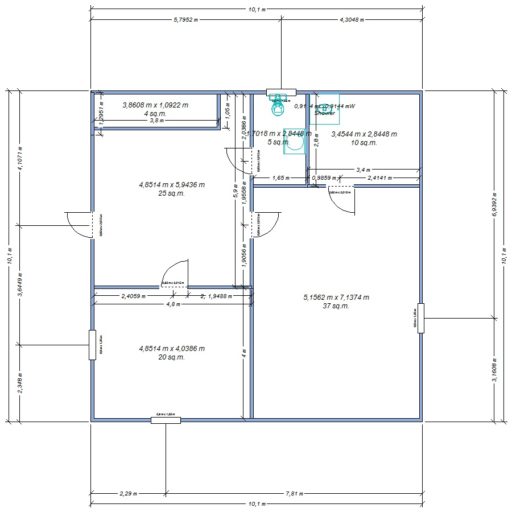
Монтажная схема расположения радиаторов и комнат.
Стоимость работ и оборудования.
Учтены работы по монтажу новых труб системы отопления, работы комплексно обозначены в смете.
Материалы и работы по переоборудованию котельной цокольного этажа не подвергались учету. (Требуется ТЗ)
| Внимание! Оплата данного счета означает согласие с условиями поставки товара. Уведомление об оплате обязательно, в противном случае не гарантируется наличие товара на складе. Товар отпускается по факту прихода денег на р/с Поставщика, самовывозом, при наличии доверенности и паспорта. | ||||||||||||||||||||||||||||||||
| Образец заполнения платежного поручения | ||||||||||||||||||||||||||||||||
| ОАО «АЛЬФА-БАНК» 107078, г.Москва, ул.Каланчевская, д 27 | БИК | 044525593 | ||||||||||||||||||||||||||||||
| Сч. № | 30101810200000000593 | |||||||||||||||||||||||||||||||
| Банк получателя | ||||||||||||||||||||||||||||||||
| ИНН 7733630084 | КПП 773301001 | Сч. № | 40702810101100003335 | |||||||||||||||||||||||||||||
| «ООО ДИЗАЙН ПРЕСТИЖ» | ||||||||||||||||||||||||||||||||
| Получатель | ||||||||||||||||||||||||||||||||
| Счет № 72 от 27.01.14
Стоимость оборудования | ||||||||||||||||||||||||||||||||
| Поставщик: | ИНН 7733630084 КПП 773301001 «ООО ДИЗАЙН ПРЕСТИЖ» Россия, Москва, Походный проезд, д. 4, кор. 2, стр. 2, офис №1, тел. 8(495) 744-67-74 | |||||||||||||||||||||||||||||||
| Покупатель: | Александр Агафоново , тел. 8 985 643 —— | |||||||||||||||||||||||||||||||
| № | Товар | Кол-во | Ед. | Цена | Сумма | |||||||||||||||||||||||||||
| 1 | Американка медная КМЕ d=15*1/2 | 1 | шт | 237.60 | 237.60 | |||||||||||||||||||||||||||
| 2 | Кран шаровой d=25 с накидной гайкой | 2 | шт | 512.60 | 1’025.20 | |||||||||||||||||||||||||||
| 3 | Крепеж металлический d=15 | 40 | шт | 29.80 | 1’192.00 | |||||||||||||||||||||||||||
| 4 | Крепеж металлический d=22 | 40 | шт | 37.50 | 1’500.00 | |||||||||||||||||||||||||||
| 5 | Монтажный комплект №1 газ для пайки медных труб, медных фитингов, бронзовых и медных переходников | 1.5 | шт | 368.20 | 552.30 | |||||||||||||||||||||||||||
| 6 | Монтажный комплект №1 припой для пайки медных труб, медных фитингов, бронзовых и медных переходников | 6 | шт | 1’120.00 | 6’720.00 | |||||||||||||||||||||||||||
| 7 | Монтажный комплект №1 флюс для пайки медных труб, медных фитингов, бронзовых и медных переходников | 1.5 | шт | 860.00 | 1’290.00 | |||||||||||||||||||||||||||
| 8 | Монтажный комплект №1 шкурка для нарудной зачистки медных труб | 6 | шт | 62.00 | 372.00 | |||||||||||||||||||||||||||
| 9 | Монтажный комплект №1 щетка для зачистки медных труб, медных фитингов, бронзовых и медных переходников | 2 | шт | 260.00 | 520.00 | |||||||||||||||||||||||||||
| 10 | Муфта медная КМЕ d=15 | 30 | шт | 28.00 | 840.00 | |||||||||||||||||||||||||||
| 11 | Муфта медная КМЕ d=22 | 30 | шт | 42.80 | 1’284.00 | |||||||||||||||||||||||||||
| 12 | Муфта медная редукционная КМЕ d=15*22 | 8 | шт | 52.40 | 419.20 | |||||||||||||||||||||||||||
| 13 | Терморегулятор радиатора угловой | 30 | шт | 324.80 | 9’744.00 | |||||||||||||||||||||||||||
| 14 | Тройник медный КМЕ d=15 | 16 | шт | 37.00 | 592.00 | |||||||||||||||||||||||||||
| 15 | Тройник медный КМЕ d=22 | 14 | шт | 68.00 | 952.00 | |||||||||||||||||||||||||||
| 16 | Тройник медный КМЕ d=22*15*22 | 8 | шт | 72.30 | 578.40 | |||||||||||||||||||||||||||
| 17 | Труба медная КМЕ d=15 | 70 | м | 227.20 | 15’904.00 | |||||||||||||||||||||||||||
| 18 | Труба медная КМЕ d=22 | 80 | м | 364.80 | 29’184.00 | |||||||||||||||||||||||||||
| 19 | Угол медный 45гр. КМЕ d=15 | 40 | шт | 32.00 | 1’280.00 | |||||||||||||||||||||||||||
| 20 | Угол медный 45гр. КМЕ d=22 | 20 | шт | 45.00 | 900.00 | |||||||||||||||||||||||||||
| 21 | Угол медный 90гр. КМЕ d=15 | 120 | шт | 32.80 | 3’936.00 | |||||||||||||||||||||||||||
| 22 | Угол медный 90гр. КМЕ d=22 | 12 | шт | 67.00 | 804.00 | |||||||||||||||||||||||||||
| Итого: | 79’826.70 | |||||||||||||||||||||||||||||||
| Всего наименований 22, на сумму 79’826.70 руб. | ||||||||||||||||||||||||||||||||
| Семьдесят девять тысяч восемьсот двадцать шесть рублей 70 копеек | ||||||||||||||||||||||||||||||||
| Внимание! Оплата данного счета означает согласие с условиями поставки товара. Уведомление об оплате обязательно, в противном случае не гарантируется наличие товара на складе. Товар отпускается по факту прихода денег на р/с Поставщика, самовывозом, при наличии доверенности и паспорта. | ||||||||||||||||||||||||||||||||
| Образец заполнения платежного поручения | ||||||||||||||||||||||||||||||||
| ОАО «АЛЬФА-БАНК» 107078, г.Москва, ул.Каланчевская, д 27 | БИК | 044525593 | ||||||||||||||||||||||||||||||
| Сч. № | 30101810200000000593 | |||||||||||||||||||||||||||||||
| Банк получателя | ||||||||||||||||||||||||||||||||
| ИНН 7733630084 | КПП 773301001 | Сч. № | 40702810101100003335 | |||||||||||||||||||||||||||||
| «ООО ДИЗАЙН ПРЕСТИЖ» | ||||||||||||||||||||||||||||||||
| Получатель | ||||||||||||||||||||||||||||||||
| Счет № 73 от 27.01.14
Стоимость производства работ | ||||||||||||||||||||||||||||||||
| Поставщик: | ИНН 7733630084 КПП 773301001 «ООО ДИЗАЙН ПРЕСТИЖ» Россия, Москва, Походный проезд, д. 4, кор. 2, стр. 2, офис №1, тел. 8(495) 744-67-74 | |||||||||||||||||||||||||||||||
| Покупатель: | Александр Агафоново , тел. 8 985 643 —— | |||||||||||||||||||||||||||||||
| № | Товар | Кол-во | Ед. | Цена | Сумма | |||||||||||||||||||||||||||
| 1 | Демонтаж радиатора отопления | 15 | шт | 640.00 | 9’600.00 | |||||||||||||||||||||||||||
| 2 | Комплекс работ по сверлению отверстий | 1 | комп | 22’000.00 | 22’000.00 | |||||||||||||||||||||||||||
| 3 | Монтаж радиатора отопления на штатное место | 15 | шт | 1’470.00 | 22’050.00 | |||||||||||||||||||||||||||
| 4 | Монтаж труб к радиатору отопления (трасса не более 5м) | 15 | шт | 1’370.00 | 20’550.00 | |||||||||||||||||||||||||||
| 5 | Сборка радиатора | 15 | шт | 270.00 | 4’050.00 | |||||||||||||||||||||||||||
| 6 | Установка терморегулятора радиатора отопления | 30 | шт | 312.00 | 9’360.00 | |||||||||||||||||||||||||||
| 7 | Пуско-наладочные работы системы отопления | 1 | комп | 1’890.00 | 1’890.00 | |||||||||||||||||||||||||||
| 8 | Опрессовка системы отопления | 1 | комп | 2’360.00 | 2’360.00 | |||||||||||||||||||||||||||
| Итого: | 91’860.00 | |||||||||||||||||||||||||||||||
| Всего наименований 8, на сумму 91’860.00 руб. | ||||||||||||||||||||||||||||||||
| Девяносто одна тысяча восемьсот шестьдесят рублей 00 копеек | ||||||||||||||||||||||||||||||||
Ремонт квартир, загородных домов, кровля, фундаменты, заборы, ограждения, автономная газификация, частная канализация, отделка фасадов, системы водоснабжения от колодца и скважины, профессиональные современные котельные для частных домов и предприятий. |
Системы: отопления, водоснабжения, канализации. Под ключ. |
Холдинговая компания СпецСтройАльянс |
Прокладка, ремонт и монтаж тепловых сетей, теплотрасс под ключ. Для частных домов и предприятий. |






